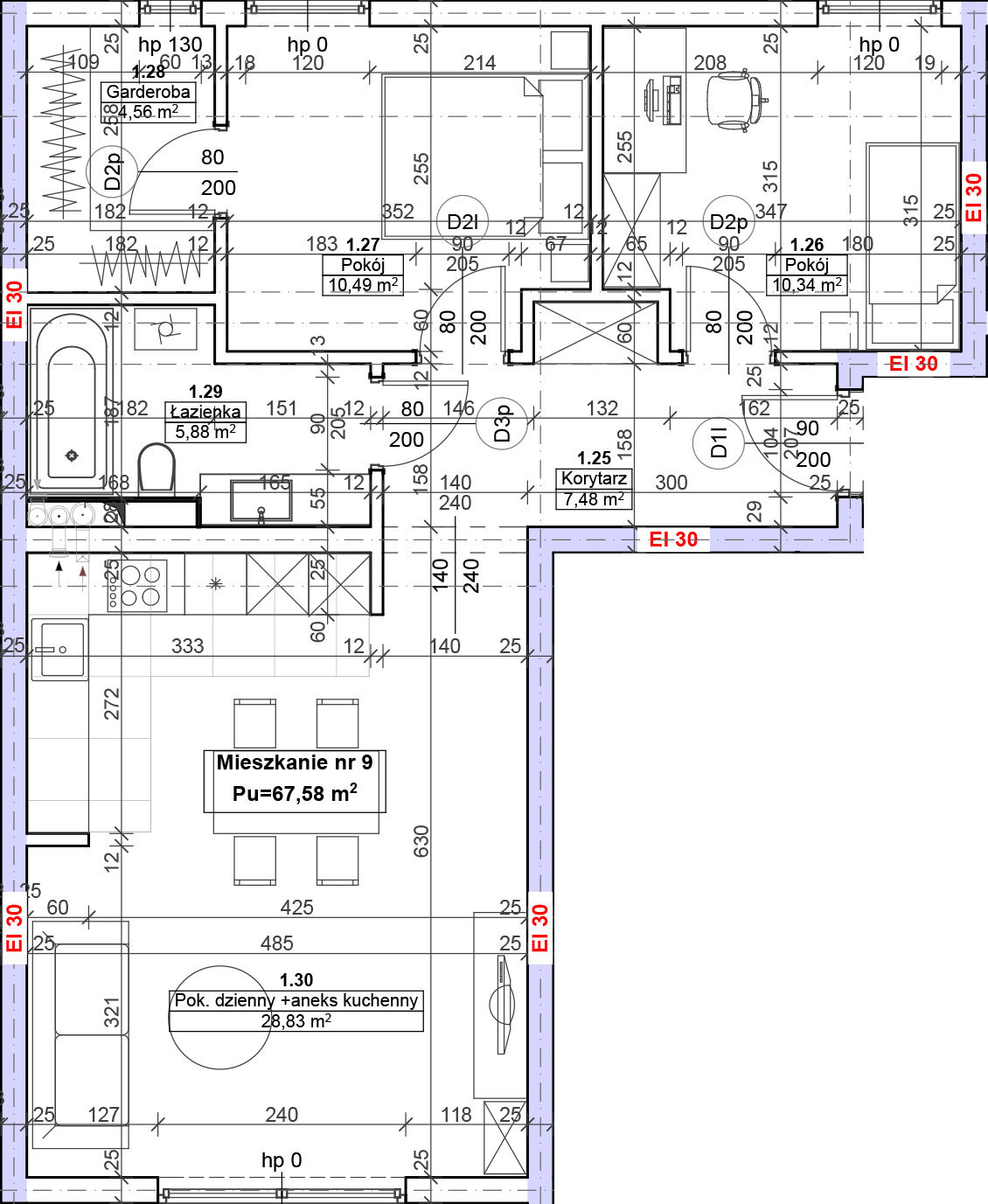
Mieszkanie nr 9
Mieszkanie zajęte Inwestycja w toku

Główne cechy
Liczba pokoi 3 pokoje
Powierzchnia 67.58 m²
Proponowany czynsz 1268 zł
Partycypacja 184 728 zł
Lokalizacja Piętro I
Mapa
Miasto Sieradz
Chcesz być na bieżąco z naszymi działaniami?
Zapisz się już teraz do newslettera SIM Łódzkie, a my poinformujemy Cię o wszystkich nowych aktualnościach!

