Miasto Brzeziny

Główne cechy
Opis
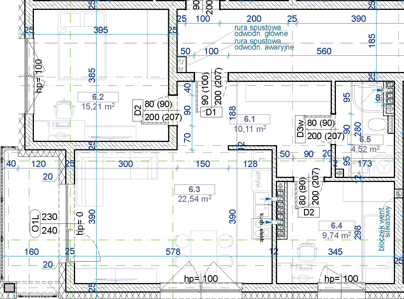
SIM Łódzkie oraz Miasto Brzeziny wspólnie realizują projekt budowy nowoczesnych bloków mieszkalnych przy ulicy Wyszyńskiego. Dwa budynki będą oferować łącznie 80 mieszkań, po 40 lokali w każdym, dając mieszkańcom możliwość wyboru optymalnej powierzchni. Mieszkania będą komfortowo wyposażone w niezbędne udogodnienia. Inwestycja obejmuje także nowoczesną infrastrukturę techniczną oraz parking dla samochodów. Dodatkowo, zaplanowano plac zabaw dla dzieci, co sprawia, że projekt jest idealnym miejscem do życia dla rodzin. Dzięki dogodnemu dostępowi do drogi publicznej, mieszkańcy będą mieli łatwy dostęp do centrum miasta. Projekt będzie zrealizowany z dbałością o każdy detal, oferując wygodne i bezpieczne miejsce do życia.
Wirtualny spacer
Przejdź się po przykładowym mieszkaniu!
Mapa
Miasto Brzeziny, ul. Kardynała Stefana Wyszyńskiego

Liczba mieszkań: 80
Wyświetlane: 1-10 z 80
Filtrowanie
Chcesz być na bieżąco z naszymi działaniami?
Zapisz się już teraz do newslettera SIM Łódzkie, a my poinformujemy Cię o wszystkich nowych aktualnościach!







